Previous | Next | Discuss :: Free Advice (General Feng Shui)
Sorry Cecil,
Some mistake in my previous message which I am making the corrections here.
1) The question is not 'Why the centre of the house' but instead 'Where is the centre of the house'.
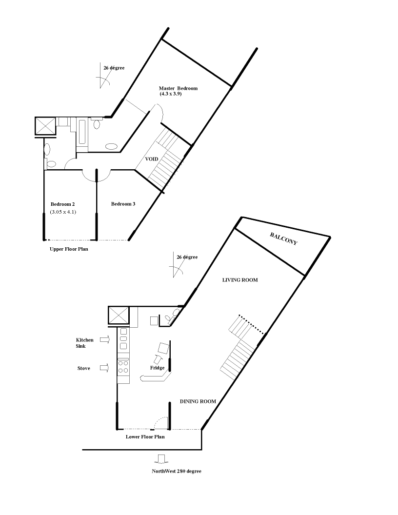
2) The attached files were all identical due to attachment problem. Here is the other floorplan that was meant to be attached.
Sorry for the blunder.
Thanks & Regards,
floorplan-2.gif
Exact floorplan (17,601 bytes)
|
|
[ Site Search | Forum Search | Picture Search | Site Map ] |
|
|
|
|
||
|
Help Desk: (65) 9785-3171 |
||
|
|
|
|
|
Highlights |
|
Extend your learning with Master Cecil Lee's Applied Feng Shui Made Easy Book. |
|
Site Navigation |
|
|
|
|
![]()